晓港名城
所在区域:青岛 设计风格:新中式风格
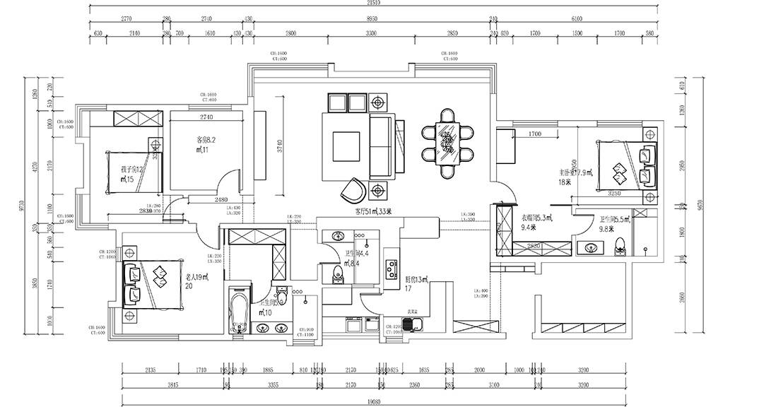
装修面积
237
平方
施工时长
3
月
设计理念
晓港名城是和记黄埔精心打造的港式外观建筑,确定为现代中式风格,通过空间与意境结合创造出不同的生活体验。深厚浓郁的东方韵味,带着岁月打磨与沉淀的痕迹。几何艺术的变奏,在方圆分寸之间,红鲤嬉游莲叶间的抽象意境,与干支花艺对比明显,素雅间亦有和润质感。与新元素共生,起居室的设计阐述的事千百年来从未易改的东方哲学进阶人生。一草一木皆是中国传统意向的完美再现,经典又和谐






