桃李芳菲
所在区域:青岛 设计风格:地中海风格
装修面积
158
平方
施工时长
3
月
设计理念
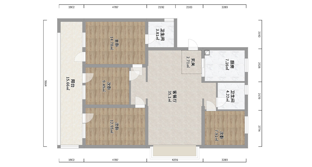
本案设计主要以空间最舒适化利用为主,追求自然自在。门处布置鞋柜,设计储物功能同时分隔客厅餐厅区域;将原先大阳台分隔开一部分并入客厅另一部分并入房间,增加客厅与房间的使用空间,同时增加阳台储物柜空间,将空间最大化利用;餐厅部分将原小房间打开,设计中岛吧台,结合背后酒柜造型以及地中海式拱形门头,搭配镂空小门扇,营造出餐厅的休闲轻松氛围。






