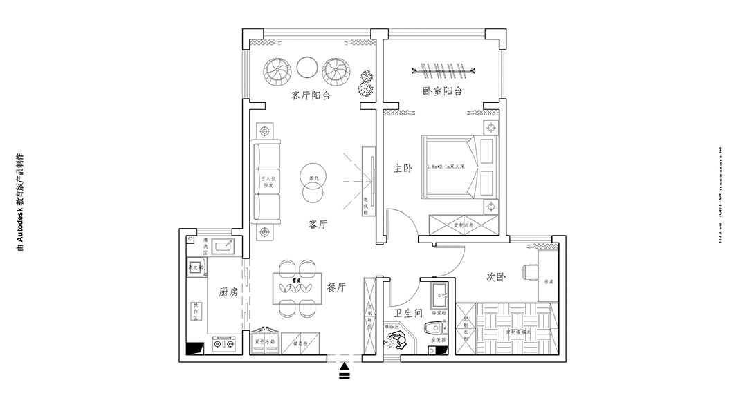
海悦居
所在区域:青岛 设计风格:简约风格
装修面积
86
平方
施工时长
3
月
设计理念
现代人装修越来越趋向于现代简约装修风格,它迷人之处在于简约又时尚。现代简约风格追求的是简约不简单,它不是简单“堆砌”和随便地“摆放”,所有的细节看上去都是非常简洁的。在注重空间功能使用的舒适性的同时,打造一个简洁干净、明亮温馨、舒适的空间。整体设计,一点都不复杂,删繁就简,反而更上档次。



