您好,欢迎来到佳装网,好装修就找佳装网!
绿城晓峰湖畔
所在区域:青岛    设计风格:现代风格
装修面积
140
平方
施工时长
3
设计理念
本方案为现代简约风格,年轻人居住,色调浅色雅致。餐厅与客厅分区明显,动静分离,通风效果较好,能够使室内空气充分流通,清新洁净。在满足功能需求的前提下,将空间、人及物品进行合理精致的组合,描绘出最简单素雅的生活空间,给人回味无穷。

绿城晓峰湖畔140㎡三室两厅现代风格装修案例效果图

更新时间: 2022-04-03 16:20:44     浏览:386次
Detail design
设计细节
本方案为现代简约风格,年轻人居住,色调浅色雅致。餐厅与客厅分区明显,动静分离,通风效果较好,能够使室内空气充分流通,清新洁净。在满足功能需求的前提下,将空间、人及物品进行合理精致的组合,描绘出最简单素雅的生活空间,给人回味无穷。

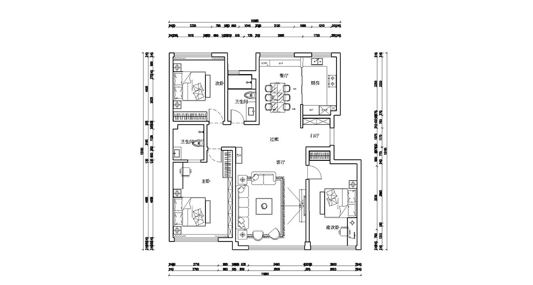
绿城晓峰湖畔140㎡三室两厅户型平面布局图.jpg

绿城晓峰湖畔140㎡三室两厅户型平面布局图

绿城晓峰湖畔140㎡三室两厅客厅现代风格装修案例效果图

绿城晓峰湖畔140㎡三室两厅餐厅现代风格装修案例效果图

绿城晓峰湖畔140㎡三室两厅主卧现代风格装修案例效果图

绿城晓峰湖畔140㎡三室两次主卧现代风格装修案例效果图

绿城晓峰湖畔140㎡三室两次南主卧现代风格装修案例效果图

热门案例    大家都在看的案例
枫林小镇160㎡联排别墅新中式风格装修案例效果图
方案是两个高薪阶层领导的新中式雅居风格,整体设计采用,硬包背景墙,木饰面板,金属线条,原先格局是封闭的独立空间,设计上打通所有空间重组,采用律动的新中式,大胆的金属线条的运用,不失中式的美感,也有奢华的一面贯穿始终,最美新中式客户整体满意度很高,期待再次合作。
银都花园135㎡三室两厅现代风格装修案例效果图
以现代风格为主调,主要色彩是米色、浅咖色、白色。在总体布局方面满足宽敞明亮的需求,注重居室空间的布局与使用功能的完美结合。整体简约又不失设计感,开放式布局空间联通,动线流畅。客厅米灰色系的沙发,造型简约,搭配材质柔软的软装,使客厅充满闲话自在的空间氛围。
新城花园140㎡平层现代风格装修案例效果图
设计以高品质,简单化为理念,设计出主体简单大方,并且给人时尚,前卫,优雅,并且还会有温馨舒适的感觉。与大家比较熟悉的现代风格相比,多了几分品质和设计感;透露生活本真纯粹的同时,又融合了奢华和内涵的气质。装修上面更多的会将现代元素的简约,和古典元素的大气融合在一起。不管是在硬装和软装的布局设计方面,还是在色彩图案的运用方面,都能够体现这一特点。硬装会比较偏现代风,家具和软装更加偏向于古典风,整体给人的感觉是非常时尚,奢华,有品位。
影都壹号127㎡三室两厅意式轻奢风格装修案例效果图
本案设计风格为意式轻奢,拒绝了浓烈的色彩,以一种简单、纯粹的设计语言,回归生活的本质,留存给居住者更多生活想象的空间。 整体空间灰橙色、驼色、与浅暖灰色调展现轻奢低调的高级质感,简约时尚的家具又增添了一份现代感,重新梳理了空间功能和尺寸,客厅阳台一体化设计,最大限度引入自然光,高级灰搭配中性色系木饰面,打造一个舒适的高品质空间。在空间设计与色彩配搭上,精准地把控节奏,用设计表达空间的包容性,更多的是通过人性化思考,创造一个功能性完整的舒适生活空间。大块的木饰面、金属元素和灯 光的碰撞搭配,凸显出强大张力,共同打造出意式轻奢腔调十足的时尚与质感。
华达公寓150㎡四室两厅现代简约风格装修案例效果图
以简洁、清晰和功能性为特征的室内设计;它主要强调了空间的简化和精炼,追求线条简单、空间通透、色彩明亮、材质自然等特点,注重形式与功能的结合。他们希望有一个时尚、现代的功能性空间,在整个空间的设计上用了暖灰调来与简约的线条感来相呼应,能改造出一个通透、流畅的空间感。
都市果岭198㎡别墅简约风格装修案例效果图
本案整体以现代中式风格为主,既有现代风格简约、明朗的线条,又有中国传统内涵与韵味。墙面大面积使用暖色烘托整体氛围,融洽中式与现代简约两种风格。空间更宽阔舒适玄关收纳、玄关与干区相结合,既解放的外卫的空间客厅电视背景是一面装饰柜,丰富了空间,增加了收纳和储物,美观又实用。
免费报价
算一算我家装修多少钱?
 
装修案例   |   装修公司   |    全景图   |   设计团队    |    施工工地    |   热门楼盘   |   最新活动   |   装修攻略   |   在线学堂   |   家居风水
佳装网 Copyright © 2023 www.aseoc.com 佳装网 版权所有
佳装网是一家致力于为业主推荐高标准高质量的装修公司的服务平台。挑选优质的新房装修设计、旧房翻新、别墅大宅设计案例的装修装饰平台。
工作时间:周一至周日 8:30 - 22:00