青钢小镇
所在区域:青岛 设计风格:简约风格
装修面积
100
平方
施工时长
3
月
设计理念
简洁和实用是现代简约风格的基本特点,简约风格已经大行其道几年了,仍然保持很猛的势头,这是因为人们装修时总希望在经济、实用、舒适的同时,体现一定的文化品味。而简约风格不仅注重居室的实用性,而且还体现出了工业化社会生活的精致与个性,符合现代人的生活品位

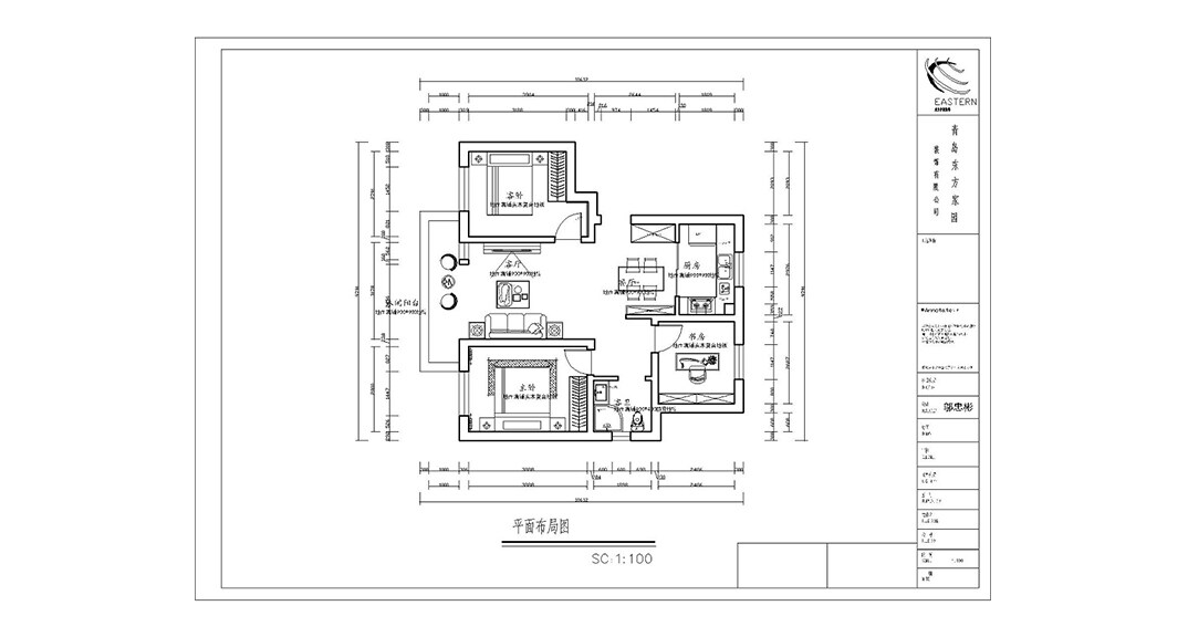
青钢小镇100㎡三室两厅户型平面布局图

青钢小镇100㎡三室两厅客厅电视背景墙现代简约风格装修案例效果图

青钢小镇100㎡三室两厅客厅沙发现代简约风格装修案例效果图

青钢小镇100㎡三室两厅客餐厅现代简约风格装修案例效果图

青钢小镇100㎡三室两厅客餐厅现代简约风格装修案例效果图